412 South Valley

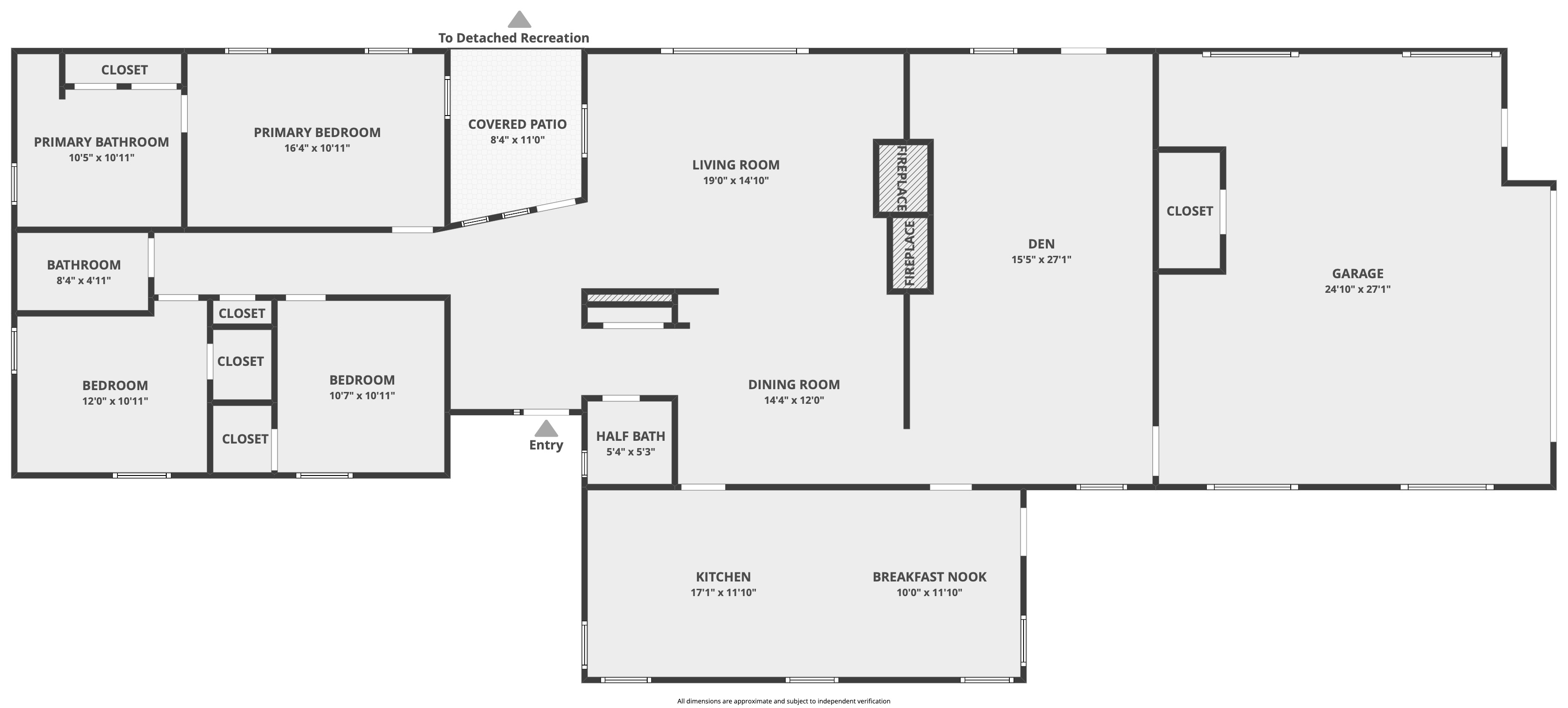
Beautifully renovated 3 bedroom ranch on scenic Flat Creek featuring hardwood, tile & stone flooring, one gas log fireplace, one wood burning fireplace, multiple built in cabinets, large den and formal dining, huge kitchen with lots of cabinet space, all new light fixtures, 2 year old roof, all double pane vinyl clad windows, new water heater, gorgeous stone paver patio out back, detached studio with many possibilities. Extensive landscaping on 2.5+- acres outside of city limits Walk to creek to fish anytime. Mature trees and very private setting.

HD Video Tour

Zillow 360 Virtual Tour


Meet my Real Estate Photography and Virtual Tour provider